賃貸物件検索For rent
| 家賃 | 26,000円 |
|---|---|
| 共益費 | 2,000円 |
| 駐車場 | 1,000円 P1台有料 |
| 礼金 | |
| 敷金 | |
| ハウスクリーニング代 | 41,800円 |
| 仲介料 | 1.1ヶ月 |
| 構造 | 軽量鉄骨造 |
|---|---|
| 専有面積 | 17.50m2 |
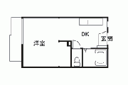
| 部屋 | 洋6/K3 |
| 階数 | 2階建ての2階 |
※建物の設備・施設等は現状有姿とさせていただきますので、ご了承ください。
間取図・方位・写真・内装写真など、現況が異なる場合は現況を優先させて頂きます。
間取図・方位・写真・内装写真など、現況が異なる場合は現況を優先させて頂きます。
設備
- プロパンガス
- 公共下水
- ウォシュレット
- エアコン1













